2021年10月22日,北京银泰建构科技股份有限公司申报的一项实用新型专利“一种折线型锚固装置”成功获得国家知识产权局授权!

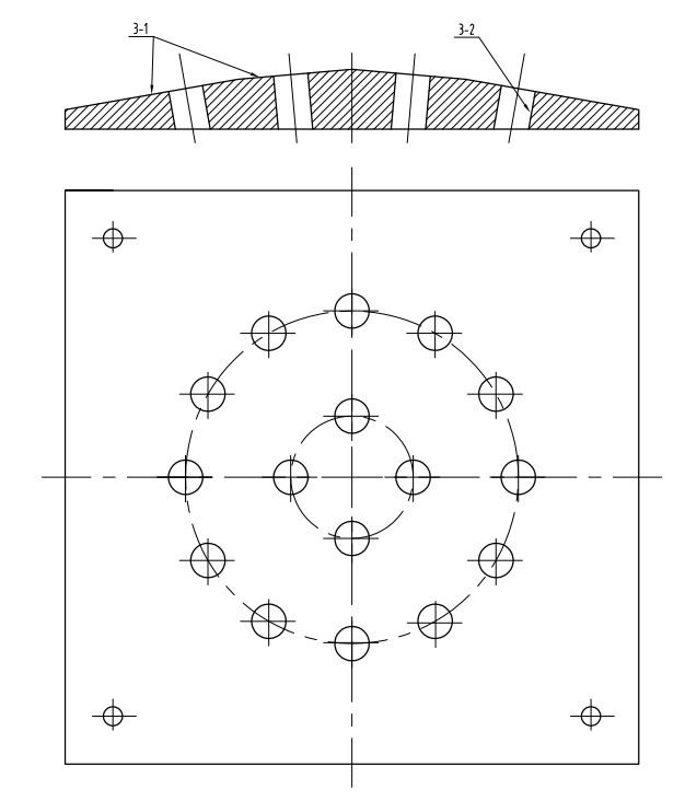
此专利为一种增强预应力筋抗剪能力的折线型锚固装置:用于锚固钢绞线的锚固装置背离构件面设计为折线型,另一面仍为平面。此专利的锚固装置包括夹片式锚固体系的锚板,握裹式锚固体系的垫板。背离构件面的折线为一道或多道折线,各道折线角度为配合预应力筋使用时的偏转角度。
在将锚固装置改为折线型后,预应力筋平行于锚固装置中为其预留的通孔,从而使预应力筋不会与锚固装置发生接触,避免了锚固装置对预应力筋产生剪切作用;同时另一面仍为平面,增加安全系数,降低加工难度。

本实用新型的夹片式扁锚结构示意图

本实用新型的夹片式扁锚结构示意图

本实用新型的握裹式圆锚垫板结构示意图

本实用新型的握裹式扁锚垫板结构示意图

本实用新型的圆锚连接器结构示意图

本实用新型的扁锚连接器结构示意图
北京银泰建构科技股份有限公司自2010年成立以来,专注于预应力技术科研开发和工程实践。多年来一直十分重视企业的自主创新能力,在科研开发工作上保持长期投入,积极开展核心技术创新工作,并出台相关专利奖励制度政策,激发技术同仁申报技术成果的积极性。