继2019年5月22日顺利完成洛阳卷烟厂易地技改项目NSG预应力整体地坪项目以来,北京银泰建构科技股份有限公司承担设计与施工的第二个NSG预应力整体地坪项目,中国商飞江西生产试飞中心完工中心NSG预应力整体地坪顺利完工!

一、工程概况
中国商飞江西生产试飞中心项目位于南昌航空城东南侧,连接瑶湖机场跑道南端西侧,总面积约365亩,主要建设完工中心、喷漆机库、交付中心、航材库等。建成后,将主要承担ARJ21新支线飞机内饰安装、喷漆、生产试飞支持、客户交付支持、维修维护、运营保障等工作,以推动和提升中国商飞公司异地生产试飞能力。

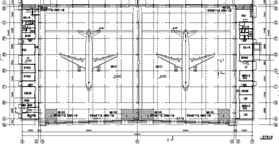
该项目完工中心上部结构为钢结构,建筑面积9091㎡,地坪面积8900平米,分为机库大厅1和机库大厅2。为保证飞机入库的平稳,对地坪平整度要求极高,且要求地坪整体无缝不透水,为满足上述要求,采用了NSG整体地坪技术。中铁十八局集团作为总承包单位,中国航空规划设计研究院为设计单位,广州市耐迪装饰工程有限公司与我司合作作为NSG整体地坪分包单位,我司作为预应力分包单位,承担了NSG整体地坪方案、设计、施工工作。

本项目停机库采用SOG后张有粘结预应力混凝土整体地面技术,根据现有结构、荷载、使用功能等信息设计,并依据现场情况组织合理施工方案;集中荷载100kN/m2,采用板厚220mm预应力整体地坪;砂石土地基(砂石选用砂、碎石,天然干燥素土按1:1:2进行配比的混合料,回填时采用强夯工艺夯实地基,地基回填到标高后需做静载试验,承载力特征不小于120Kn/㎡)。根据结构布置及使用功能,将整体地坪分成2个仓,每个仓尺寸为61.3米X73.75米,面积约为4500平方米。

二、BICP-NSG预应力整体地坪的优势
无切割缝:切割缝的荷载传递能力将随搬运车的动力碾压逐渐丧失,导致严重的挠度、开裂,切割缝棱边还会出现损坏。引入预应力后,过载后自动恢复能力强,可不设切割缝,减少后期维修费用,提高生产效率。
耐久性好:通过在地坪中建立预压应力,可有效控制因混凝土收缩、温度应力引起的地坪开裂。
结构刚度大,平整度更佳:当土壤中水分含量变化时,地坪体积会发生膨胀或收缩。预应力地坪比普通结构地坪刚度更大,可以使结构在地基变化时不发生破坏。
三、工程特点
单仓面积4500㎡的分仓面积在既往的工程案例也是非常罕见的,也是本工程的一大难点,给混凝土浇筑、激光整平、预应力张拉都提出很大的挑战。

仓一布置图

仓二浇筑混凝土

仓一张拉

仓二整体
中国商飞江西生产试飞中心NSG预应力整体地坪是北京银泰建构科技股份有限公司(BICP)自主研发,设计并施工的预应力整体地坪项目,本项目的成功竣工,标志着BICP-NSG后张有粘结预应力混凝土整体地面技术又上新的台阶,挑战更大分仓面积的整体地坪。